| Aukštai | 3 |
| Kambarių skaičius | 4 |
| Langų orientacija | R, V |
| Plotai | |
| Pirmas aukštas | 56.42 |
| Antras aukštas | 47.53 |
| Bendras plotas | 103.95 |
| Statusas | Laisvas |
| Patalpa | Plotas (m²) |
|---|---|
| Tambūras | 5.98 |
| Sandėlis | 6.66 |
| San. mazgas | 1.75 |
| Svetainė + virtuvė + valgomasis | 42.03 |
| Iš viso 1 aukštas | 56.42 |
| Bendras plotas | 103.95 |
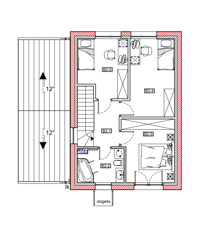
| Patalpa | Plotas (m²) |
|---|---|
| Koridorius | 4.47 |
| Tėvų miegamasis kambarys | 12.49 |
| Vonia | 5.83 |
| Vaiko kambarys | 14.01 |
| Vaiko kambarys | 10.73 |
| Iš viso 2 aukštas | 47.53 |
| Bendras plotas | 103.95 |